Accueil
Portfolio
Prestations
A propos
Contact
< Retour
<
>
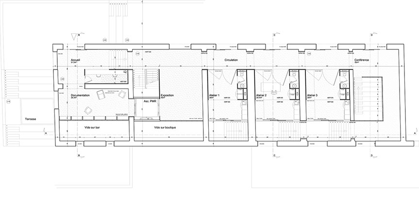
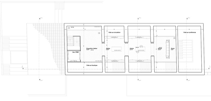
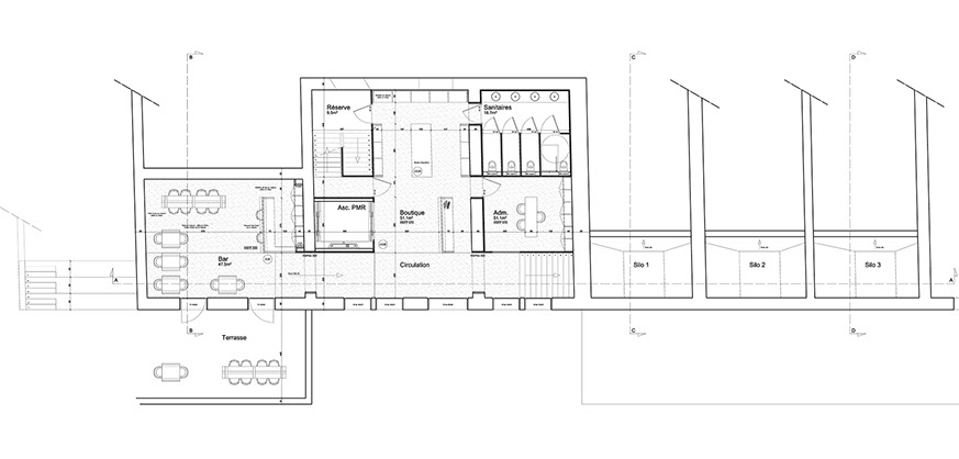
Projet libre de diplôme
L'histoire au service de l'architecture
Tél. 0659805740 - Mail. fannyrampon.architecte@gmail.com
© 2019 by Fanny Rampon, Architecte d'intérieur. Tous droits réservés