Accueil
Portfolio
Prestations
A propos
Contact
<
>
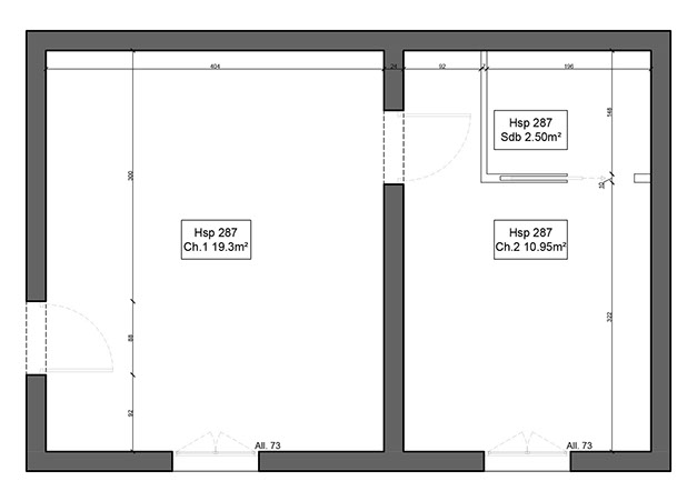
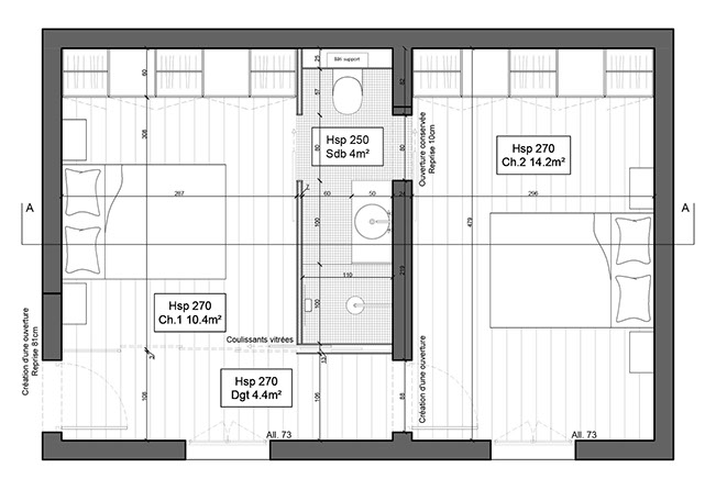
Rénovation d'un espace nuit
Deux chambres et une salle d'eau
< Retour
Tél. 0659805740 - Mail. fannyrampon.architecte@gmail.com
© 2019 by Fanny Rampon, Architecte d'intérieur. Tous droits réservés